top of page

Réhabilitation Maison C

Maîtrise d'Ouvrage | Localisation | Date | Type de Mission |
|---|---|---|---|
Maitres Carrés
Faisabilité
2024
Clermont-Ferrand (63)

Le projet :
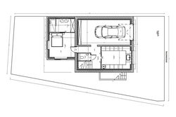
Le projet consiste à une réhabilitation d'une maison existante situé à Chamalières. Le projet comprend une extension au niveau du RDC donnant un accès direct au jardin, l'ensemble sera vitré avec un revêtement en bois brulé et la toiture sera une toiture végétalisée. Au niveau de la façade côté rue nous aurons une extension de la toiture qui donnera une place de stationnement couverte.

![]() | ![]() | ![]() |
|---|---|---|
![]() |
bottom of page








